
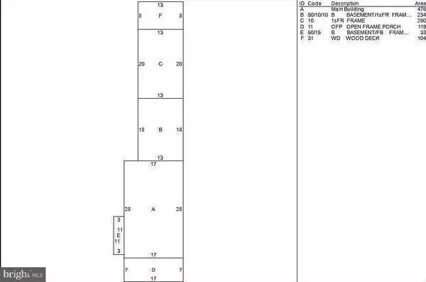
2,177 SqFt
2,177 SqFt
Key Details
Property Type Multi-Family
Sub Type Twin/Semi-Detached
Listing Status Active
Purchase Type For Sale
Square Footage 2,177 sqft
Price per Sqft $183
MLS Listing ID DEKT2041198
Style Traditional
Abv Grd Liv Area 2,177
Year Built 1880
Annual Tax Amount $1,461
Tax Year 2025
Lot Size 3,441 Sqft
Acres 0.08
Lot Dimensions 27.30 x 145.12
Property Sub-Type Twin/Semi-Detached
Source BRIGHT
Property Description
Location
State DE
County Kent
Area Capital (30802)
Zoning RG1
Interior
Hot Water Electric
Heating Forced Air
Cooling Central A/C
Flooring Carpet, Ceramic Tile, Laminated
Inclusions appliances
Fireplace N
Heat Source Electric
Laundry Dryer In Unit, Washer In Unit
Exterior
Garage Spaces 2.0
Water Access N
View Street
Street Surface Black Top,Access - On Grade
Accessibility None
Road Frontage City/County
Total Parking Spaces 2
Garage N
Building
Foundation Brick/Mortar
Above Ground Finished SqFt 2177
Sewer Public Sewer
Water Public
Architectural Style Traditional
Additional Building Above Grade, Below Grade
Structure Type Dry Wall
New Construction N
Schools
School District Capital
Others
Tax ID ED-05-07705-03-7000-000
Ownership Fee Simple
SqFt Source 2177
Security Features Main Entrance Lock
Acceptable Financing Cash, Conventional
Listing Terms Cash, Conventional
Financing Cash,Conventional
Special Listing Condition Standard


"My job is to find and attract mastery-based agents to the office, protect the culture, and make sure everyone is happy! "






